
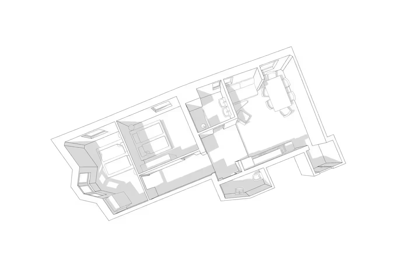
Diese charmante Wohnung verbindet rustikale Elemente mit lebendigem, modernem Design. Der offene Wohn- und Essbereich mit einer voll ausgestatteten Küche und farbenfrohen Akzenten bietet Raum zum Entspannen und Genießen. Die harmonische Kombination aus modernen Möbeln, Retro-Elementen und warmen Holz verleiht der Wohnung eine einzigartige Atmosphäre. Ideal für Paare, Familien oder kleine Gruppen, die das historische Flair mitten im Geschehen, am städtischen "Dorfplatz", erleben möchten. Die Unterkunft Diese Wohnung befindet sich im zweiten Obergeschoss (ohne Lift) eines 400 Jahre alten Hauses. Die Wohnung selbst wurde 2024 saniert und ladet neben dem modernen Bad, gemütlichen Wohnbereich mit vollausgestatteter Küche vor allem durch die Einrichtung mit Retro-Akzenten und Fischgrät Holzboden ein. Inklusive großer Gemeinschaftsterrasse mit Sicht über Innsbruck, Welcome Card und Netflix. Zugang für Gäste Privates Apartment, Gemeinschaftliche Sonnen-Terrasse mit Blick über Innsbruck einen Stock unter dem Apartment.
Innsbruck